Vivienda JA
280 m2 / 2016 / Chuy, Rocha
Obra nueva
Anteproyecto / Proyecto ejecutivo / Dirección de obra
En un predio alto de la ciudad se proyecta una vivienda de 280 m² con varios espacios de estar y servicios. Se toman los 15 m del frente del predio y se subdivide en 5 franjas de 3 m cada una. Considerando los retiros exigidos por la intendencia se liberan las dos líneas de los extremos, y en las otras tres se alternan y articulan los diferentes espacios.
En la franja noroeste se dispone la secuencia patios-escritorio-escalera-patio-dormitorio-vestidor-baño-patio. Los ahuecamientos se ubican estratégicamente para permitir las extensiones de los espacios principales hacia el exterior. Como contraparte, la franja sureste contiene áreas de servicios, formando la secuencia de la siguiente manera patio-cochera-acceso secundario-baño-cocina-lavadero-patio-parrillero. La línea central de 3 m está compuesta por un espacio unificado de estar-comedor que se abre al frente y al fondo, generando un atravesamiento directo y vinculando el interior al exterior.
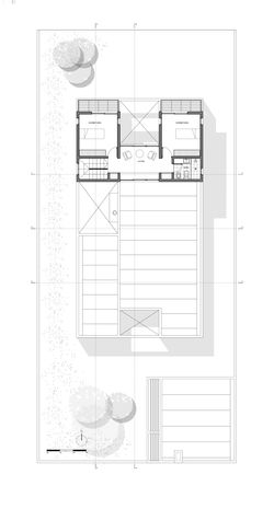
En el segundo nivel se ubican los dormitorios secundarios y el área de estudio, que ocupan los frentes de las 3 franjas centrales. Aprovechando la localización del predio en una de las zonas más altas de la ciudad, se generan terrazas pergoladas en los dormitorios como expansiones exteriores con visuales hacia gran parte de la ciudad.
Las franjas y la articulación de los espacios se reflejan en la fachada a través de volúmenes, marcos, pérgolas y decks con diferentes profundidades. Esto genera un espacio interior-exterior de doble altura que jerarquiza el acceso principal.
![]() | ![]() |
|---|---|
![]() | ![]() |
![]() | ![]() |
![]() | ![]() |
![]() | ![]() |
![]() | ![]() |
![]() | ![]() |
![]() | ![]() |
![]() | ![]() |
![]() | ![]() |
![]() |




















